Commercial Boilers - Gas Boilers Series GM™ Boiler
The Series GM™ gas-fired cast iron boiler is the ideal choice for large residences, especially when a multiple or modular application is required. When used in single, multiple or modular boiler installations, it is designed to be vented into a conventional chimney and can work in higher pressure applications requiring up to a 100 PSIG relief valve. The fully-packaged, atmospheric boiler is available in four sizes with inputs of 214.5 MBH to 399 MBH.
*Combine Series GM™ boilers in single, multiple or modular arrangements with the Peerless® Partner® indirect-fired water heater to create a customized Peerless® FLEX-HEAT® hydronic comfort system!
Product Details:
Type: Semi-Commercial
Construction: Cast Iron
Fuel: Gas-Fired (Natural or LP)
Input: 214.5 to 399 MBH
Output: 182 to 320 MBH
Venting: Natural Draft
Trim: Water
Ignition: Spark Pilot
![]()
![]()

Series GM™![]() |
Input, kW | Output, kW | Net Ratings Water, kW | ||||||||
|---|---|---|---|---|---|---|---|---|---|---|---|
| Model Number | Input, MBH | HEATING CAPACITY1, MBH | Net Ratings2, MBH | AFUE1, % | Thermal Efficiency3, % | Combustion Efficiency3, % | |||||
| GM-e-05 | 214.5 | 182 | 158 | 84.2 | – | – | 62.9 | 53.3 | 46.3 | ||
| GM-e-06 | 268 | 226 | 197 | 84.0 | – | – | 78.5 | 66.2 | 57.7 | ||
| GM-07 | 342 | 275 | 239 | – | 80.3 | 82.5 | 100.2 | 80.6 | 70.0 | ||
| GM-08 | 399 | 320 | 278 | – | 80.3 | 82.5 | 116.9 | 93.8 | 81.5 | ||
1 – Output is Heating Capacity for models with inputs <300 MBH and Gross Output for models with inputs ≥300 MBH. Heating Capacity and Annual Fuel Utilization Efficiency (AFUE) ratings are based on U.S. Government test.
2 – Gross Output Rating, Thermal Efficiency and Combustion Efficiency determined in accordance with AHRI requirements.
3 – Net water ratings based on an allowance of 1.15. Consult factory before selecting a boiler for installations having unusual piping and pickup requirements, such as intermittent system operation, extensive piping systems, etc.

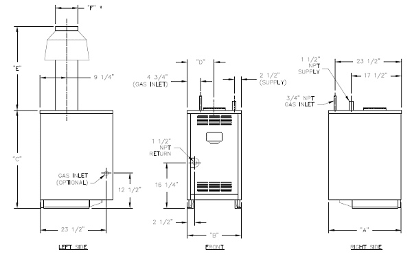
Series GM™ Boiler Dimensions
| Boiler Model Number | Jacket Depth “A” |
Jacket Width “B” |
Jacket Height “C” |
Left of Jkt. to C/L of Vent “D” |
Top of Jkt. to Vent Connector “E” |
Vent Size “F” Dia. |
|---|---|---|---|---|---|---|
| GM-e-05 | 25-3/4″ | 19-1/4″ | 35-1/4″ | 9-3/4″ | 29″ | 7″* |
| GM-e-06 | 25-3/4″ | 22-3/4″ | 35-1/4″ | 11-1/2″ | 30″ | 8″* |
| GM-07 | 25-3/4″ | 26-1/4″ | 35-1/4″ | 13-1/4″ | 31″ | 10″ |
| GM-08 | 25-3/4″ | 29-3/4″ | 35-1/4″ | 15″ | 31″ | 10″ |
*Vent diameter is determined by outlet diameter of vent reducer (provided) installed on outlet of vent damper. 8″ to 7″ reducer on GM-e-05; 9″ to 8″ reducer on GM-e-06.
